×
à vendre 447000 €
Maison
Toulouse (31100)
5 pièces
123m²
1/3

Description

Si vous cherchez une véritable toulousaine en briques de terre cuite et avez le goût pour la rénovation de notre patrimoine alors vous tomberez sous le charme de cette maison de ville située dans le coeur de quartier de Saint Simon. 
Saint Simon a conservé son âme de petit faubourg avec de nombreuses associations et activités sportives ou festives.
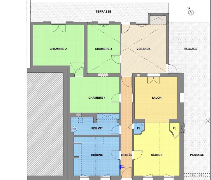
Proche des écoles des commerces et des transports, cette maison toulousaine bâtie sur une parcelle de 1000m2 se compose d'une cuisine, d'un séjour salle à manger, de 3 chambres et d'une salle de bains. Elle offrira de multiples possibilités d'aménagements ou d'agrandissement pour qui saura se projeter.
Les fenêtres et volets roulants ont été rénovés côté rue. Aucun système de chauffage actuellement ce qui explique l'absence de DPE.La toiture est en bon état.
Sur le terrain, présence d'un puits ainsi que d'un chalet en bois. L'arrière de la maison est accessible par un passage voiture ce qui permet le stationnement privatif et la construction d'une piscine.
Taxe foncière : 1835EUR
Non soumis à DPE
Le prix s'entend honoraires à charge acquéreur inclus (prix net vendeur 430000EUR).

Parking

Agencement
Surface du terrain : 1047m² Surface habitable : 123m² Surface séjour : 37m² Expositon séjour : SUD Nombre de pièces : 5 Nombre de chambres : 3 Cuisine : Séparée Nombre de salles de bain : 1 WC : 1
Général
Année de construction : 1900 Nombre d’étages : 0 Piscine : NON Terrasse : NON Parking : OUI Garage : OUI
équipements
Copropriété
Copropriété : NON
Finance
Prix de vente honoraires TTC inclus : 447000€ Prix de vente honoraires TTC exclus : 430000€ Honoraires TTC à la charge de l’acquéreur : 17000€ Taxe foncière annuelle : 1835€
Performance énergétique
dpe
Localisation
CE BIEN VOUS Intéresse ?
Valérie Ordines
Formulaire page Contact